واحدهای شرقی

معرفی

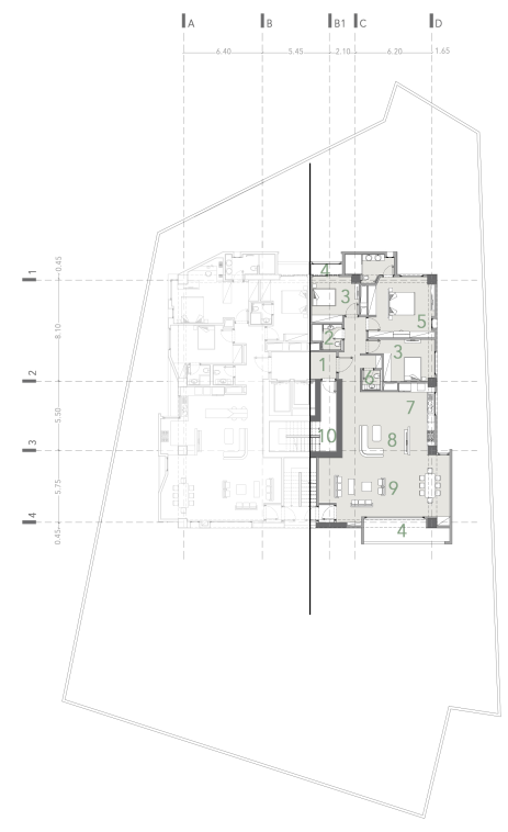
نقشه واحد های شرقی برج آریانا

واحدهای شرقی برج آریانا با زیربنای تقریبی ۲۱۶ مترمربع طراحی شده‌اند تا ترکیبی متوازن از زیبایی، کارایی و آسایش را برای ساکنان فراهم آورند. هر واحد مجهز به دو پارکینگ اختصاصی و یک انباری ۳ متری بوده و از نظر فضاسازی و نورگیری در بهترین شرایط قرار دارد.

این واحدها شامل بخش‌های ورودی مستقل، حمام و سرویس‌های بهداشتی مجزا، اتاق خواب‌های استاندارد و یک اتاق مستر با امکانات کامل هستند. وجود تراس‌های دلباز با چشم‌انداز شهری، فضایی آرام و دلنشین را برای ساکنان به وجود آورده است. در طراحی داخلی این واحدها از سنگ مرمر برند AKO در کف، پارکت چوب بلوط برند Tilo و سرامیک‌های برند KerGres در سرویس‌ها استفاده شده که نمایانگر کیفیت و اصالت در انتخاب متریال است.

نورپردازی این واحدها توسط سیستم‌های LED برند مازی‌نور صورت گرفته که علاوه بر زیبایی، عملکردی مدرن و بهینه را به ارمغان می‌آورد. کابینت‌ها، کمدها و قفسه‌های داخلی نیز از برند معتبر Dekton انتخاب شده‌اند که هم از نظر دوام و هم طراحی، در سطح بالایی قرار دارند.

در سرویس بهداشتی و حمام نیز از سرامیک‌های برند RAK بهره گرفته شده و برای تجهیزاتی مانند توالت فرنگی برند Vitra و دوش برند Antoniolupi استفاده شده تا تجربه‌ای لوکس و متمایز از زندگی آپارتمانی فراهم شود. واحدهای شرقی با ترکیب این عناصر، محیطی آرام، مدرن و هماهنگ با سبک زندگی امروزی ایجاد می‌کنند.

گالری

تصاویر مختلف واحد های شرقی