واحدهای غربی

معرفی

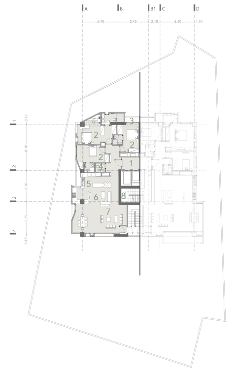
نقشه واحد های غربی برج آریانا

واحدهای غربی برج آریانا نیز با زیربنای حدود ۲۱۶ مترمربع طراحی شده‌اند و همانند واحدهای شرقی، استانداردی بالا از کیفیت و زیبایی را ارائه می‌دهند. هر واحد دارای دو پارکینگ اختصاصی و یک انباری ۳ متری است که آسایش و رفاه ساکنان را تضمین می‌کند.

این واحدها شامل ورودی مستقل، اتاق نشیمن بزرگ، سالن تلویزیون، آشپزخانه مجهز، سرویس‌های بهداشتی، اتاق خواب‌های راحت و یک اتاق مستر با امکانات ویژه هستند. وجود تراس‌های وسیع در ضلع غربی، علاوه بر تأمین نور طبیعی کافی، امکان تماشای چشم‌اندازی وسیع از شهر و رشته‌کوه البرز را فراهم می‌آورد.

کف‌سازی واحدها با سنگ مرمر برند AKO و پارکت چوب بلوط برند Tilo انجام شده است. در سرویس‌های بهداشتی از سرامیک KerGres و سرامیک RAK بهره گرفته شده که زیبایی و دوام بالایی دارند. همچنین، توالت فرنگی برند Vitra و دوش برند Antoniolupi کیفیتی بی‌نظیر به فضای حمام بخشیده‌اند.

نورپردازی داخلی این واحدها توسط سیستم‌های LED برند مازی‌نور صورت گرفته که با طراحی مینیمال و مدرن، فضایی گرم و دلنشین ایجاد کرده است. همچنین کابینت‌ها، کمدها و قفسه‌ها با استفاده از برند معتبر Dekton طراحی شده‌اند که زیبایی و ماندگاری بالایی دارند.

واحدهای غربی برج آریانا با ترکیب معماری مدرن، متریال ممتاز و چشم‌اندازی متفاوت، محیطی منحصر به فرد و متمایز برای تجربه زندگی در یکی از بهترین برج‌های شمال تهران ایجاد می‌کنند.

گالری

تصاویر مختلف واحد های غربی