فضای بیرونی

معرفی

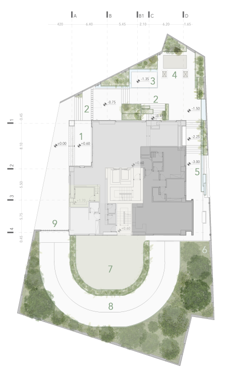
نقشه فضای بیرونی و سبز برج آریانا

فضای بیرونی برج آریانا با طراحی چشمگیر و منحصربه‌فرد، به‌گونه‌ای شکل گرفته است که ساکنان و میهمانان در بدو ورود با فضایی سرشار از آرامش، زیبایی و شکوه روبه‌رو شوند. این بخش ترکیبی هوشمندانه از معماری مدرن و طبیعت زنده است که با بهره‌گیری از سنگ‌های مرمر، گرانیت و تراورتن در کف‌سازی و دیوارها، جلوه‌ای لوکس و ماندگار ایجاد نموده است.

ورودی اصلی برج با طراحی دقیق و همراهی رمپ خودروها و مسیر دسترسی پارکینگ، تجربه‌ای راحت و بی‌دغدغه برای ورود و خروج فراهم می‌سازد. در ادامه، مسیرهای پله‌ای ویژه برای دسترسی به بخش‌های مختلف فضای سبز پیش‌بینی شده‌اند که حرکت میان باغچه‌ها و محوطه را ساده‌تر و دلنشین‌تر می‌نمایند.

بخش فضای سبز مرکزی با پوشش گیاهی متنوع و دیوارهایی پوشیده از چمن طبیعی، جلوه‌ای سرزنده و هماهنگ با طبیعت شهری ایجاد کرده است. این طراحی، در کنار آبنماهای زیبا، جریان آرامش و طراوت را به فضای زندگی روزمره منتقل می‌کند.

برای رفاه بیشتر ساکنان، بخش‌های محل نشیمن با مبلمان مخصوص در نقاط مختلف محوطه قرار گرفته‌اند تا امکان گذران لحظاتی آرام در دل طبیعت فراهم گردد. همچنین طراحی سکوی مرکزی (پلتفرم) و زمین بازی کودکان سبب شده است تا فضای بیرونی نه‌تنها کارکردی زیباشناسانه بلکه کاربری خانوادگی و اجتماعی نیز داشته باشد.

تمامی این بخش‌ها با استفاده از نورپردازی‌های دیواری و سقفی مدرن، جلوه‌ای چشمگیر در شب پیدا می‌کنند و حس امنیت، آرامش و زیبایی را به‌طور همزمان القا می‌نمایند.

محوطه بیرونی برج آریانا، فراتر از یک فضای سبز ساده، نمایانگر نگرشی جامع به زندگی شهری است؛ جایی که معماری مدرن، طبیعت و آسایش در کنار هم معنا پیدا می‌کنند.

گالری

تصاویر بخش های مختلف فضای بیرونی و سبز