پارکینگ

معرفی

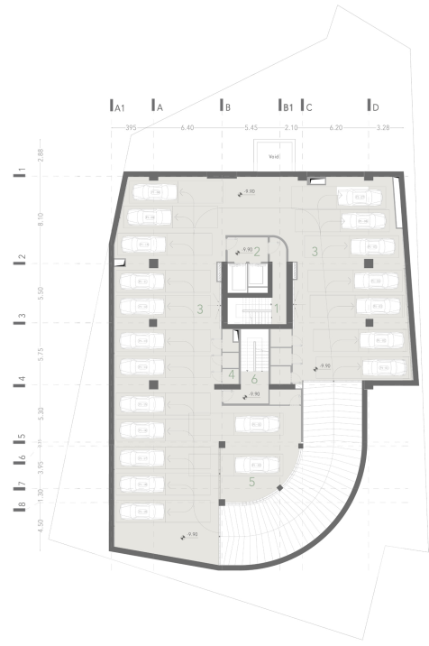
نقشه پارکینگ برج آریانا

پارکینگ برج آریانا با طراحی مدرن و مجهز به استانداردهای روز دنیا، فضایی ایمن و کارآمد برای خودروهای ساکنان و مهمانان فراهم ساخته است. این بخش با ظرفیت مناسب در طبقات اول و دوم پارکینگ طراحی شده و دسترسی آسان آن از طریق لابی اختصاصی و پله‌های ارتباطی به ساکنان آسایش و راحتی مضاعف می‌بخشد.

در این مجموعه علاوه بر فضای اصلی پارک خودروها، بخش‌های جانبی همچون انبارهای اختصاصی و کارواش مجهز نیز در نظر گرفته شده‌اند تا خدمات کامل‌تری به ساکنان ارائه شود.

یکی از ویژگی‌های شاخص پارکینگ برج آریانا، بهره‌گیری از سیستم‌های پیشرفته تهویه شامل اگزاست فن‌ها و فن‌های تزریق هوای تازه است. این سیستم‌ها با عملکردی هوشمند و ارتباط مستقیم با سنسورهای سنجش گاز CO، ایمنی کامل محیط را تضمین می‌کنند و کیفیت هوای پارکینگ را در تمامی ساعات شبانه‌روز در وضعیت مطلوب نگه می‌دارند.

برای ارتقای سطح ایمنی، راه‌پله‌های اضطراری در این بخش تعبیه شده‌اند تا در مواقع ضروری امکان خروج سریع و مطمئن فراهم گردد.

پارکینگ برج آریانا تنها یک فضای توقف خودرو نیست، بلکه مجموعه‌ای طراحی‌شده با در نظر گرفتن آسایش، ایمنی و خدمات جانبی است؛ فضایی که با استانداردهای بین‌المللی همخوانی دارد و تجربه‌ای متفاوت از پارکینگ‌های رایج شهری ارائه می‌دهد.

گالری

تصاویر بخش های مختلف پارکینگ