پنت هاوس

معرفی

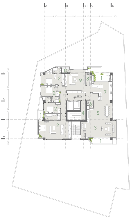
نقشه بخش پنت هاوس برج آریانا

پنت‌هاوس‌های برج آریانا، به‌عنوان شاخص‌ترین و لوکس‌ترین واحدهای این مجموعه، نمادی از زندگی مجلل در قلب الهیه به شمار می‌روند. این دو پنت‌هاوس تک‌واحدی، هر یک با زیربنای ۴۲۰ مترمربع، طراحی منحصربه‌فردی دارند که ترکیبی از معماری مدرن و استفاده از برترین متریال جهانی را به نمایش می‌گذارند.

هر پنت‌هاوس دارای پنج جای پارکینگ اختصاصی و یک انباری ۱۵ متری است که پاسخگوی نیازهای کاربردی و رفاهی ساکنان خواهد بود.

فضاهای داخلی پنت‌هاوس شامل بخش‌هایی همچون تراس وسیع با چشم‌انداز بی‌نظیر، اتاق‌خواب مستر با طراحی خصوصی، سالن نشیمن بزرگ، اتاق تلویزیون، سالن ناهارخوری، آشپزخانه اصلی و آشپزخانه خدماتی (کثیف)، سرویس‌های بهداشتی مجهز، رختشوی‌خانه و دسترسی‌های عمودی اختصاصی است. این تنوع در طراحی، حداکثر راحتی و کارایی را برای ساکنان به همراه دارد.

در انتخاب متریال، نهایت دقت و ظرافت به کار رفته است: پارکت چوب بلوط برند Tilo گرمایی دلنشین به فضا بخشیده، سنگ مرمر برند AKO جلوه‌ای لوکس و ماندگار ایجاد کرده و سرامیک‌های برند KerGres زیبایی و استحکام را به طراحی داخلی افزوده‌اند.

پنت‌هاوس‌های برج آریانا نه‌تنها از نظر ابعاد و امکانات شاخص هستند، بلکه با معماری هوشمندانه و بهره‌گیری از بهترین برندهای جهانی، سبکی از زندگی اشرافی و مدرن را در یکی از ممتازترین مناطق شمال تهران ارائه می‌دهند.

گالری

تصاویر بخش های مختلف پنت هاوس