استخر و سالن بدنسازی

معرفی

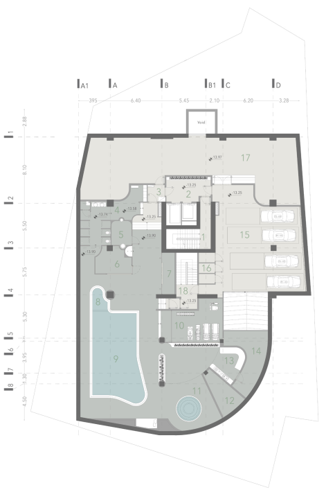
نقشه بخش استخر و سالن بدنسازی برج آریانا

بخش استخر و سالن بدنسازی برج آریانا یکی از کامل‌ترین و مجهزترین فضاهای ورزشی و رفاهی این مجموعه به شمار می‌رود. این بخش با طراحی مدرن و استفاده از متریال باکیفیت، محیطی لوکس و استاندارد برای ارتقای سلامتی، نشاط و آرامش ساکنان فراهم آورده است.

ورود به این مجموعه از طریق لابی اختصاصی و مسیرهای دسترسی راحت انجام می‌شود. در بدو ورود، فضایی برای رختکن‌ها در نظر گرفته شده تا استفاده‌کنندگان با آسایش کامل به امکانات ورزشی دسترسی داشته باشند.

استخر اصلی با ابعاد استاندارد و طراحی مدرن، مرکز این مجموعه را تشکیل می‌دهد. در کنار آن، بخش‌های سونا خشک و بخار، جکوزی و اتاق ماساژ تجربه‌ای کامل از آرامش و بازتوانی جسمی را برای ساکنان فراهم می‌کنند.

سالن بدنسازی با تجهیز به دستگاه‌های ورزشی روز دنیا، محیطی مناسب برای تمرین‌های تخصصی و عمومی ایجاد کرده است. نورپردازی مدرن، سیستم تهویه پیشرفته و طراحی داخلی مینیمال، فضایی پویا و انگیزه‌بخش را به وجود آورده‌اند.

برای پشتیبانی کامل از عملکرد این مجموعه، بخش‌های متعددی همچون اتاق فیلتر و تاسیسات آبی، انبار، آشپزخانه خدماتی و سایر امکانات فنی در نظر گرفته شده است. همچنین، وجود سیستم اطفای حریق (اسپرینکلر) و راه‌پله‌های اضطراری تضمین‌کننده امنیت و ایمنی کاربران خواهد بود.

در طراحی این فضا، توجه ویژه‌ای به جزئیات معمارانه شده است. ترکیب نورهای LED، استفاده از مصالح مرغوب و چیدمان کاربردی، فضایی مدرن و لوکس ایجاد کرده که پاسخگوی نیازهای متنوع ساکنان است.

بخش استخر و سالن بدنسازی برج آریانا، تلفیقی از سلامت، زیبایی و آرامش است؛ محیطی برای بازیابی انرژی، حفظ تناسب اندام و تجربه سبکی از زندگی لوکس در شمال تهران.

گالری

تصاویر بخش های مختلف استخر و سالن بدنسازی